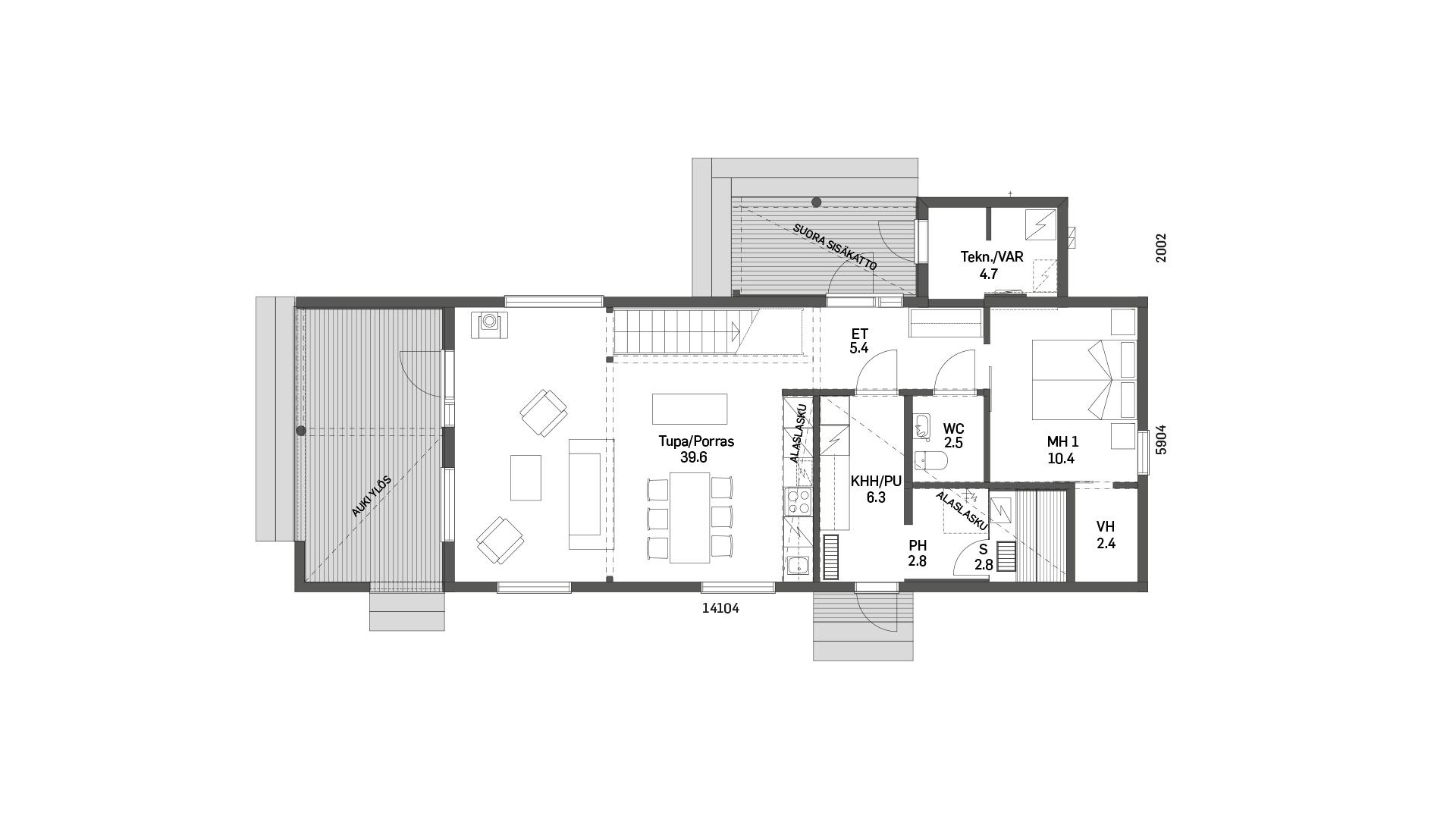
Specifications
Footprint Area:
168m2
Total Living Area:
147 m2
Number of Bathrooms:
2
Number of Bedrooms:
4
Connect
Design Collection
Direct from the factory
Mark Barber - Project Consultant +44(0)7939 739029
Terry Newman - Project Consultant +44(0)7734 947720
Scandinavian Log Homes
Please see our luxurious collection
of Scandinavian log homes
Scandinavian Log Cabins
Our collection of Log Cabins
Garden Buildings & Annexes
Our stunning collection of garden
buildings and annexes
Mobile Lodges
Our collection of mobile lodges
Manufactured to meet the Caravan Act 1968 and BS3632








