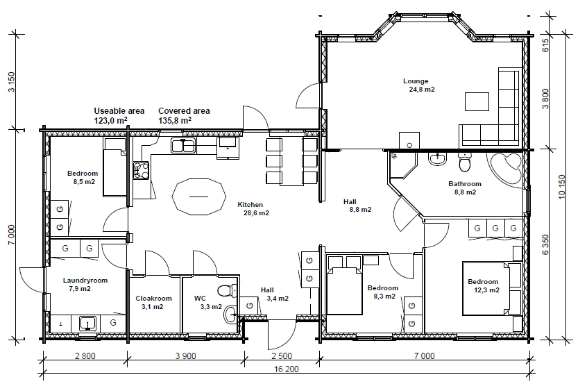
Our Tallbacken 137 is a single storey single bay fronted house with three bedrooms, living room, laundry room and large kitchen, and a super-sized bathroom.
The Tallbacken 137 is designed to be a large family home and as with all our homes can be adapted to suit your needs, to add for example a fourth bedroom. Tallbacken 137 is built to a very high standard using the highest quality slow grown nordic pine 58mm logs and as with all our homes is triple glazed as standard.
Design Collection
Direct from the factory
Mark Barber - Project Consultant +44(0)7939 739029
Terry Newman - Project Consultant +44(0)7734 947720
Scandinavian Log Homes
Please see our luxurious collection
of Scandinavian log homes
Scandinavian Log Cabins
Our collection of Log Cabins
Garden Buildings & Annexes
Our stunning collection of garden
buildings and annexes
Mobile Lodges
Our collection of mobile lodges
Manufactured to meet the Caravan Act 1968 and BS3632








