1 Storey
The Mobile Lodge 48 conforms to building standards for a mobile home (park home). As such it enjoys the relaxed planning regulations enjoyed by mobile/park homes. It has a similar specification to our Tallbo cabins, and so is constructed of 88mm interlocking logs, double glazed windows and doors, and wall, ceiling and floor insulation to keep you comfortable in the coldest of winters.
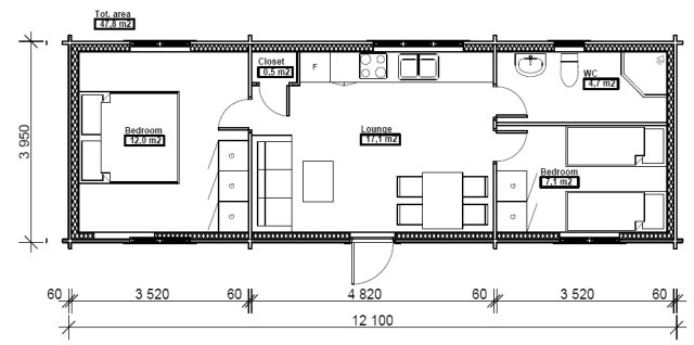
Specifications
Footprint Area:
48m2
Total Living Area:
Number of Bathrooms:
1
Number of Bedrooms:
2
Connect
Design Collection
Direct from the factory
Mark Barber - Project Consultant +44(0)7939 739029
Terry Newman - Project Consultant +44(0)7734 947720
Scandinavian Log Homes
Please see our luxurious collection
of Scandinavian log homes
Scandinavian Log Cabins
Our collection of Log Cabins
Garden Buildings & Annexes
Our stunning collection of garden
buildings and annexes
Mobile Lodges
Our collection of mobile lodges
Manufactured to meet the Caravan Act 1968 and BS3632








